阿拉伯山庄三期
Springs四房+保姆房
背靠背,离公园走路200米
带租约20万迪拉姆/年(约38万rmb), 到26年5月初到期空出
建筑面积:2530.6平方英尺/235平方米
占地面积:2566平方英尺/238平方米
市场价:410万迪拉姆左右/779万rmb
捡漏价:350万迪拉姆/665万rmb
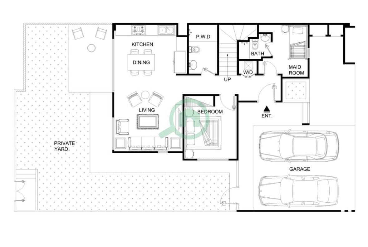
户型图如下:
微信联系看房:524088542(或扫以下微信二维码)
迪拜电话:00971558347830(whatsapp同号)
【联系我时,请说是在迪拜全酋通华人网看到的,谢谢! 小贴士:本平台信息由网友自行发布,平台仅提供便民平台,信息真实性由发布人负责,本平台不承担任何责任,请仔细甄别。如遇无效、虚假、诈骗信息,每一个信息标题下方都含有举报按钮,请点击举报或联系客服】
1、举报虚假信息,广告推广请联系客服QQ
2、任何同类型网站禁止转载、采集本站信息,网友发布的信息请自行辨别,本站所有信息都有举报按钮,如遇虚假信息可直接举报。














已通过身份证认证
已通过营业执照认证 

本网站由阿里云提供云计算及安全服务