新鲜开盘
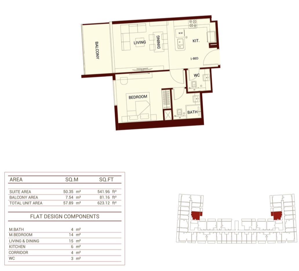
房号:737
户型:一室一厅
价格:1,057,186迪拉姆
面积:623 sqft
景观:泳池景观
付款计划:
20%首付,
5%每个月
30%尾款
完工时间:2025年12月
本人主营迪拜精品各大区域高端房产,公寓,别墅,豪宅,地块,大批量购买投资客等,迪拜各大开发商一手房源代理全程一站式服务,托管迪拜业主物业,协助买家办理签证,为您全程提供VIP服务,争取超大的优惠,让您在迪拜买房路上省时、省力、省心安家
#房产#买房#海外配置
【联系我时,请说是在迪拜全酋通华人网看到的,谢谢! 小贴士:本平台信息由网友自行发布,平台仅提供便民平台,信息真实性由发布人负责,本平台不承担任何责任,请仔细甄别。如遇无效、虚假、诈骗信息,每一个信息标题下方都含有举报按钮,请点击举报或联系客服】
1、举报虚假信息,广告推广请联系客服QQ
2、任何同类型网站禁止转载、采集本站信息,网友发布的信息请自行辨别,本站所有信息都有举报按钮,如遇虚假信息可直接举报。












未上传身份证认证
未上传营业执照认证 

本网站由阿里云提供云计算及安全服务