#首霸心领地商铺出售
完工: 今年11月
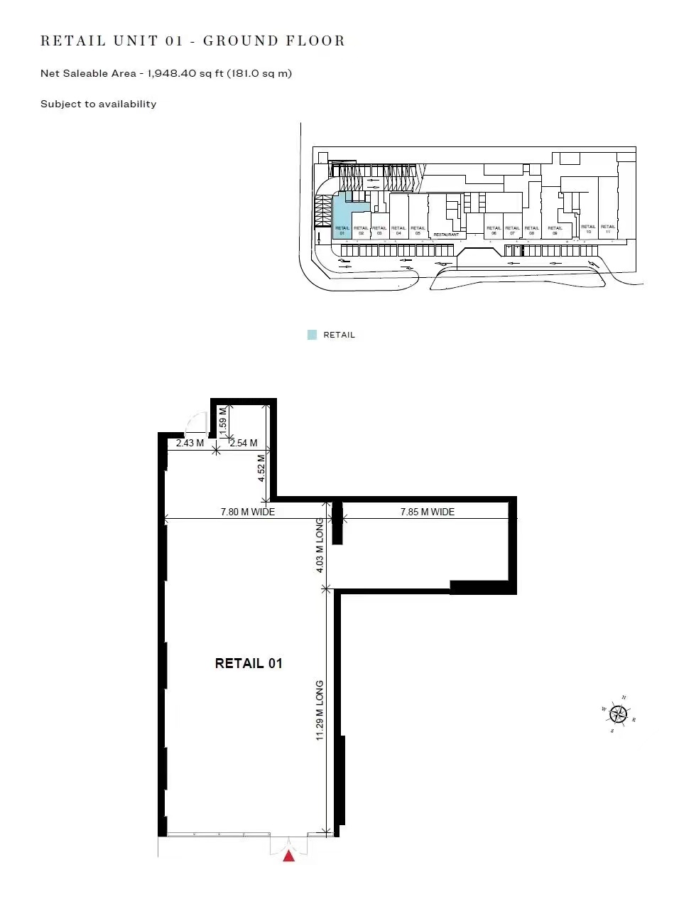
181平方米,428.6万迪拉姆|737万人民币
付款:20%首付,80% 完工
详情欢迎电话/微信联系
【联系我时,请说是在迪拜全酋通华人网看到的,谢谢! 小贴士:本平台信息由网友自行发布,平台仅提供便民平台,信息真实性由发布人负责,本平台不承担任何责任,请仔细甄别。如遇无效、虚假、诈骗信息,每一个信息标题下方都含有举报按钮,请点击举报或联系客服】
1、举报虚假信息,广告推广请联系客服QQ
2、任何同类型网站禁止转载、采集本站信息,网友发布的信息请自行辨别,本站所有信息都有举报按钮,如遇虚假信息可直接举报。

















已通过身份证认证
已通过营业执照认证 

本网站由阿里云提供云计算及安全服务