一、关于阿拉伯山庄:
阿拉伯山庄是一个华丽的住宅社区,是被称为阿拉伯山庄的总体项目的一部分。它位于迪拜中央区,包括在宁静的绿色空间中建造的各种别墅。阿拉伯山庄(Arabian Ranches)在**初的两个阶段中已建立了自己的一流家庭社区,而阿拉伯山庄三期(Arabian Ranches III)只会凭借其美丽的房屋来提高声誉。
阿拉伯山庄的原始区域以世界一流的阿拉伯牧场高尔夫球场为中心,而第二期,则被绿色的人行道和景观美化的空间所环绕。
这两个社区的别墅都结合了地中海和阿拉伯设计美学,以泥土色调反映了沙漠环境,而茂密的植被和优美的水景则形成了鲜明对比。
阿拉伯山庄三期(Arabian Ranches III)地理位置优越,被Al Barsha,Dubai Hills Estate和Dubai Sports City所环绕。距阿联酋购物中心和迪拜市中心只有很短的车程,并且靠近数个著名的教育和医疗机构以及两个国际机场。
阿拉伯庄园是伊玛尔(Emaar)打造的高端社区之一,与迪拜山庄齐名。之前的阿拉伯庄园1期,2期已经成为爆款,积攒了不少好口碑的阿拉伯庄园3期如今也登世而出,之前的 SUN和JOY 炙手可热,目前已经售完。
阿拉伯庄园绿化高达70%,比邻专业的高尔夫球场,居住着许多高净值人士。阿拉伯山庄重新定义着别墅的生活方式, 结合高尔夫球场开阔的生活空间,配置宽敞的阳台、庭院和露台,配套餐厅、咖啡馆、泳池、医疗机构和学校。既是学区别墅,也是医疗别墅,更是居家之所,尽受低调的奢华生活。
在阿拉伯庄园的栖息之地,Emaar伊玛尔对外发布了**新的联排别墅项目:
RUBA
阿拉伯山庄三期Ruba是提供三居室和四居室家庭住宅的优质社区,旨在为家庭提供轻松的生活方式。
二、地理位置
5分钟到达环球社区
10分钟到达迪拜POLO和数码俱乐部
20分钟到达迪拜市区
35分钟到达迪拜购物中心
35分钟到达迪拜豪居
20分钟到达迪拜国际机场
35分钟到达马克图姆国际机场
RUBA(Arabian Ranches 3)远离迪拜市区,但是却有黄金主路与城区联通。5分钟可达迪拜知名景区地球村,与阿拉伯庄园1期、2期隔街相望,20分钟可达迪拜市区和迪拜国际机场,35分钟内可达迪拜购物中心、迪拜游艇港和阿勒马克土姆机场。居家来讲,安静但又不失方便。
三、配套设施:
在较大的阿拉伯山庄三期社区中,您将可以使用几种独特的便利设施,例如植物园,游乐场,公园(包括滑板公园),缓跑径,足球场,板球场,多功能体育公园 ,以及跑酷课程。该社区还将拥有自己的学校,医疗诊所和专用的零售设施。
公园
泳池石窟
带健身中心的会所
户外健康区
休闲露台
烧烤区
儿童泳池
儿童游乐区
林荫大道
Ruba专为隐私,舒适,放松和不可否认的时尚感而设计。它包括拥有3种建筑风格的3-4卧联排别墅。
您可以从Siraj系列,Atheer系列和Manar系列中选择。 每种类型都提供充满活力的浅色调色板和大窗户,可俯瞰周围绿地的美丽景色。 每个地块都有私家花园,您可以在这里度过愉快的周末下午,与家人共度美好时光。
三房:190平方米,135万迪拉姆起(256万RMB)
四房:233平方米,175万迪拉姆起(333万RMB)
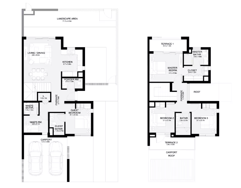
三居室户型图如下图
四居室户型图如下图
四、无利息的付款方式如下图
更多迪拜房产资讯,欢迎电话/微信联系(扫以下微信二维码)
【联系我时,请说是在迪拜全酋通华人网看到的,谢谢! 小贴士:本平台信息由网友自行发布,平台仅提供便民平台,信息真实性由发布人负责,本平台不承担任何责任,请仔细甄别。如遇无效、虚假、诈骗信息,每一个信息标题下方都含有举报按钮,请点击举报或联系客服】
1、举报虚假信息,广告推广请联系客服QQ
2、任何同类型网站禁止转载、采集本站信息,网友发布的信息请自行辨别,本站所有信息都有举报按钮,如遇虚假信息可直接举报。




















已通过身份证认证
已通过营业执照认证 

本网站由阿里云提供云计算及安全服务